Référence : 1425689-0V

A vendre - Local commercial - Craponne

251 m²  divisibles à partir de  79 m²
69290 CRAPONNE
Immédiate
Prix de vente : 217 388 €  HT
Yasmina ZABAR
Votre conseiller Yasmina ZABAR
Contactez-moi

Description

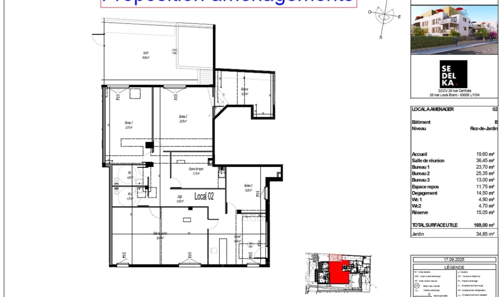
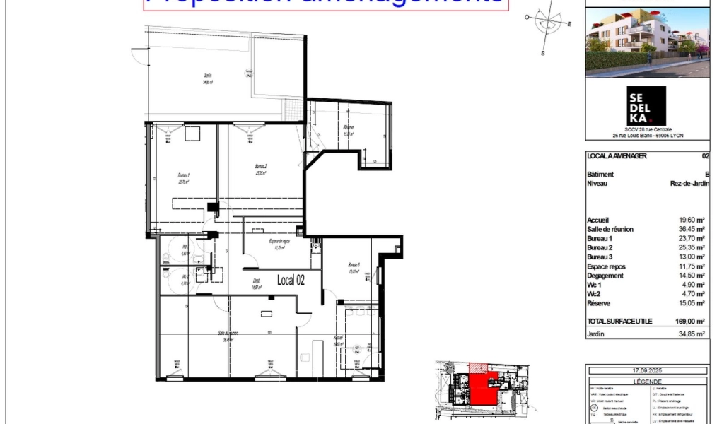
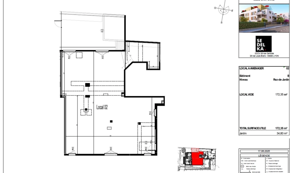
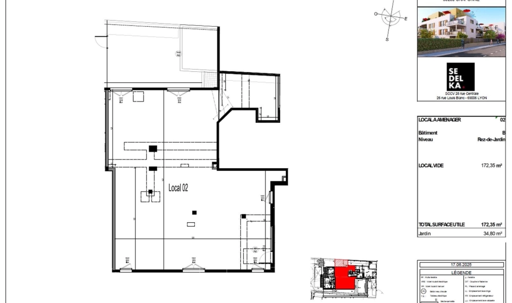
Vous recherchez à installer votre activité sur le secteur du Sud Ouest Lyonnais ? Votre agence Brice robert Arthur Loyd Lyon vous propose une surface commerciale, située au 28 Rue Centrale à Craponne, en plein coeur du centre-ville et à proximité immédiate de nombreux commerces, cette surface commerciale de 250 m², divisible à partir de 80 m², offre un emplacement idéal pour développer votre activité. Les locaux sont livrés brut de béton, fluides en attente, pour un aménagement entièrement personnalisable.

Localisation & Accès

BUS Lyon Craponne Centre (Ligne C24, Ligne 147, Ligne 73), Bergeron (Ligne C24E)

Les informations sur les risques auxquels ce bien est exposé sont disponibles sur le site Géorisques.

Prestations

Local livré brut de béton, fluides en attente et vitrines posées
Doublage thermique sur les murs de l'extérieurs
Réserve de sol = 17cm (isolation thermique et chape selon activité)
Réseaux concessionnaires en attentes (Electricité, Eaux usées, Télécom.)
? Châssis vitrés inclus conformément aux plans du permis de construire
Réseaux concessionnaires en attentes (Electricité, Eaux usées, Télécom.)
? Châssis vitrés inclus conformément aux plans du permis de construire
Surface RDC : 251,4 m²

Vous avez une demande spécifique
pour votre recherche ?

Contactez-nous

Conditions financières et dispositions

Type Locaux Commerciaux
Régime fiscal TVA
Honoraires vente 2,5% HT du prix de vente HT, à la charge de l'acquéreur, payables à la signature de l'acte

Dispositions et surfaces

Étage Type Bâtiment Surface (m²) Prix HT Prix Global HT
RDC Locaux Commerciaux B02 172.35 2 750,00 € / m² 473 963,00 € / m²
RDC Locaux Commerciaux B01 79.05 2 750,00 € / m² 217 388,00 € / m²
- Parking - 1 Emplac. simple(s) en sous-sol 20 000,00 € / u 20 000,00 € / u
Total 251
Eléments affichés non contractuels

DPE & GES

A B C D E F G
Diagnostic de performance énergétique

Diagnostic DPE en cours

A B C D E F G
Indice d'émission de gaz à effet de serre

Diagnostic GES en cours


Parlez-nous de votre projet immobilier !

Nous vous accompagnons dans votre projet en vous livrant notre expertise et la qualité de notre service dans un climat de confiance.

*Éléments obligatoires
Avez-vous une question ?
Nous utilisons des cookies et autres traceurs pour analyser et améliorer votre expérience utilisateur, réaliser des statistiques de mesure d’audience et vous permettre de lire des vidéos. Vous pouvez à tout moment modifier vos paramètres de cookies en désactivant le bouton "Performance & Analytics". En cliquant sur le bouton "Accepter tous les cookies" vous acceptez le dépôt de l’ensemble des cookies. Dans le cas où vous cliquez sur "Enregistrer mes préférences" ou refusez les cookies proposés, seuls les cookies techniques nécessaires au bon fonctionnement du site seront déposés. Pour plus d’informations, vous pouvez consulter la page "Charte de données personnelles".